207 E Main Ave
Chewelah, WA 99109

Scroll to Content

Property Description

Turnkey restaurant-bar with built‑in lodging and a true owner‑operator lifestyle in the heart of Chewelah.

Step into your own business and lifestyle at this extensively remodeled restaurant and bar in downtown Chewelah, “Your Place for All Seasons.” Just one block off Hwy 395 on Main Avenue, the primary route to 49° North Mountain Resort, this location captures steady local and destination traffic all year long.

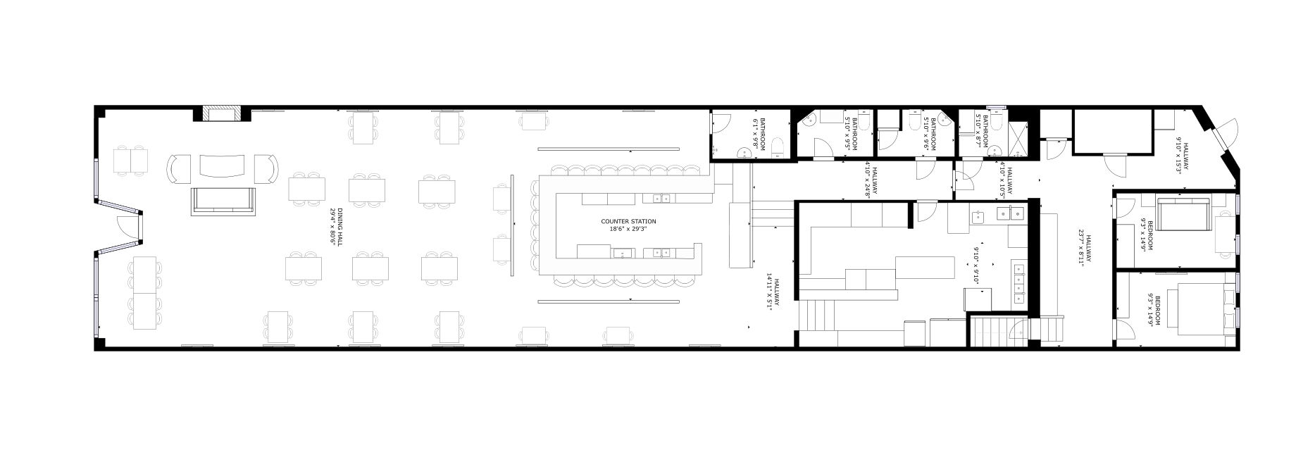
Previously operated as a vibrant, locally loved sports bar, the main level features a welcoming dining room, a fully equipped bar with beer taps, and a well‑designed commercial kitchen—everything you need to open your doors quickly with minimal additional investment (FF&E included). The layout supports casual dining, game‑day crowds, après‑ski gatherings, and community events, giving an owner‑operator multiple ways to build a loyal following.

A separate rear entrance leads to Airbnb‑style efficiencies, creating built‑in short‑term rental income potential from skiers, mountain bikers, golfers, and travelers drawn to Chewelah’s four‑season recreation and small‑town charm. Between the restaurant-bar operations and nightly rentals, an owner‑operator can live where they work, simplify management, and capture multiple revenue streams under one roof.

Main Avenue offers angled street parking, walkable access to shops and services, and the kind of authentic main‑street character that keeps customers coming back. For a hands‑on operator looking for a turnkey opportunity in a growing destination community, this property delivers business readiness, income diversity, and an enviable lifestyle setting.

Contact us today for details or to schedule a private tour.

  • $675,000
  • 4 Bathrooms
  • 4,915 Sq/ft
  • MLS: CBA-43193689

Photography

Retail Frontage

Dining Room & Bar

Kitchen

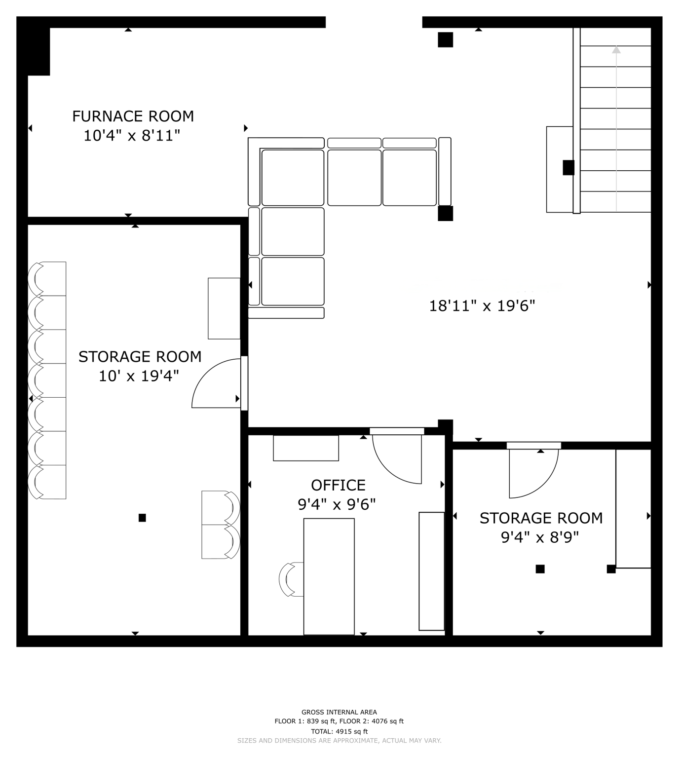
Office & Storage

Living Space

Rear Delivery Entrance

Aerials

Floor Plans

We invite you to connect with our team!

Ask your questions using the form below or call/text us directly.